Mieszkanie na sprzedaż Idealne dla rodziny!

Mieszkanie na sprzedaż
339 000,00 PLN , Pow. 47,55 m2
Drukuj ofertę
Drukuj ofertę
Typ nieruchomości:
Mieszkanie
Powierzchnia:
47,55 m2
Typ transakcji:
sprzedaż
Liczba pokoi:
3
Lokalizacja:
Łódź , Lucjana Rydla
Rok budowy:
1980
Piętro:
4 na 11
Numer oferty:
DSI-926284
Cena za m2:
7 129,34 PLN
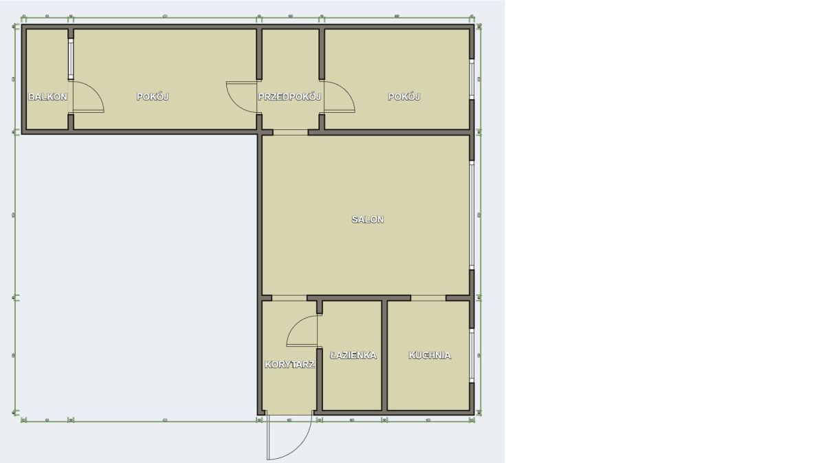
Prezentuję państwu wyjątkowe mieszkanie na sprzedaż, zlokalizowane w sercu Łodzi przy ulicy Rydla 7. Ta przestronna nieruchomość o powierzchni 47 m2 to idealna propozycja zarówno dla rodzin, jak i inwestorów poszukujących nieruchomości pod wynajem.

Mieszkanie znajduje się na czwartym piętrze budynku wyposażonego w windę, co zapewnia komfort użytkowania. W skład lokalu wchodzą trzy funkcjonalne pokoje, które można zaaranżować według własnych potrzeb. Dodatkowym atutem jest osobna kuchnia, która umożliwia swobodne gotowanie i przechowywanie artykułów spożywczych. Z balkonu można cieszyć się chwilami relaksu z widokiem na okolicę.

Lokalizacja mieszkania oferuje bogatą infrastrukturę miejską. W pobliżu znajdują się liczne bary, restauracje oraz sklepy, które zaspokoją wszelkie potrzeby zakupowe mieszkańców. Dla rodzin z dziećmi istotna będzie bliskość kilku szkół podstawowych i średnich, a także placówek medycznych takich jak apteka, szpital i gabinety lekarskie. Miłośnicy aktywnego trybu życia docenią dostępność fizjoterapeutów oraz pobliskich terenów rekreacyjnych.

Komunikacja miejska jest doskonale rozwinięta dzięki stacji tramwajowej w sąsiedztwie, co zapewnia szybki dojazd do centrum miasta i innych dzielnic.

Zapraszam do kontaktu w celu umówienia się na prezentację tego atrakcyjnego mieszkania. To doskonała okazja, by zamieszkać w dynamicznie rozwijającej się części Łodzi lub zainwestować w nieruchomość o dużym potencjale najmu.

Możliwośc oglądania po 01.11.2025.

UWAGA: Opis oferty zawarty w ofercie i na stronie internetowej sporządzany jest na podstawie oględzin nieruchomości oraz informacji uzyskanych od właściciela, może podlegać aktualizacji i nie stanowi oferty określonej w art. 66 i następnych K.C.
Nieprawidłowy adres E-mail