Teren z MPZP przy Manufakturze

Działka (Pod zabudowę wielorodzinną) na sprzedaż
8 500 000,00 PLN , Pow. 1 986 m2
Drukuj ofertę
Drukuj ofertę
Typ nieruchomości:
Działka
Powierzchnia:
1 986 m2
Typ transakcji:
sprzedaż
Lokalizacja:
Łódź Polesie
Numer oferty:
DSI-902083
Cena za m2:
4 279,96 PLN
ŁÓDŹ CENTRUM

OBOK MANUFAKTURY

DZIAŁKA POD BUDOWNICTWO WIELORODZINNE

NAROŻNA (RÓG CMENTARNEJ I ŚW. JERZEGO)
CENA = 8.500.000 zł + VAT


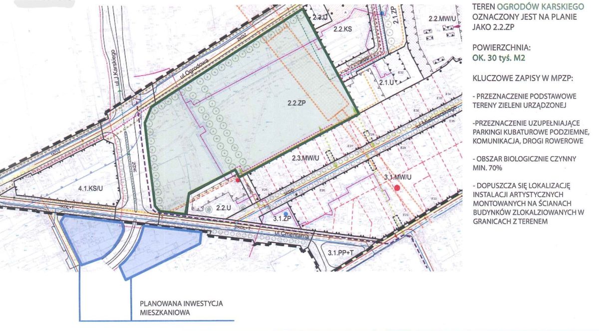
Przedmiotem sprzedaży jest teren inwestycyjny o powierzchni 1986 m2, składający się z 4 działek. Kształt działki nieregularny, zbliżony do trójkąta. W bezpośrednim sąsiedztwie planowane zgodnie z MPZP Teren o powierzchni 3h "Ogrody Karskiego".


Zgodnie z zapisami obowiązującego planu miejscowego przedmiotowa nieruchomość znajduje się w granicach jednostki planistycznej oznaczonej symbolem 1.1.MW/U- tereny zabudowy mieszkaniowej wielorodzinnej, tereny zabudowy usługowej, tereny garaży wielopoziomowych. Na podstawie którego została opracowania koncepcja inwestycyjna dla inwestycji mieszkaniowej wielorodzinnej pn. Karskiego Residence.

Dla terenów oznaczonych na rysunku planu symbolem MW/U obowiązują ustalenia: 
- W zakresie przeznaczenia terenu ustala się przeznaczenie podstawowe:
a) tereny zabudowy mieszkaniowej wielorodzinnej,
b) tereny zabudowy usługowej,
c) tereny garaży wielopoziomowych;

W zakresie warunków zabudowy i zagospodarowania terenu oraz zasad ochrony i kształtowania ładu przestrzennego ustala się wskaźniki zagospodarowania terenu:
a) wskaźnik powierzchni zabudowy - maksimum 65%, 
b) intensywność zabudowy - minimum 1,0, maksimum 3,5, 
c) wskaźnik powierzchni biologicznie czynnej - minimum 20%,
d) parametry kształtowania zabudowy frontowej: szerokość pasa terenu, w którym obowiązują ustalenia dla zabudowy frontowej - 18 m od linii elewacji frontowej, b) wysokość zabudowy frontowej - minimum 12 m, maksimum 23 m.

Na tyłach działki projektowana jest droga przedłużająca Karskiego. Nieruchomość cechuje się dogodnym dostępem do komunikacji miejskiej, która urządzona jest wzdłuż ul. Cmentarnej, Ogrodowej, Legionów. Przystanki komunikacji miejskiej znajdują się w odległości ok. 100-150m. W przyszłości pozytywnie na dostępność komunikacyjną obszaru wpłynie realizacja kolei dużych prędkości z tunelem średnicowym ze stacją pn. „Manufaktura”/”Łódź-Polesie”

wówczas będzie można dokupić fragment działki sąsiedniej o powierzchni 499 m2 i rozbudować inwestycję. Ta wartość została ujęta w koncepcji zabudowy nieruchomości dla koncepcji inwestycyjnej  mieszkaniowej wielorodzinnej pn. Karskiego Residence.

Poniżej przedstawiam wartości wg w/w koncepcji dla zabudowy działki o łącznej powierzchni 2485 m2
- powierzchnia zabudowy = 1625 m2
- powierzchnia całkowita nadziemna = 8350 m2
- powierzchnia całkowita podziemna = 2140 m2
- wysokość = 21 m (25)
- procent powierzchni zabudowy = max 65%
- intensywność zabudowy nadziemna = max 3,5
- intensywność zabudowy podziemnej = max 3,0
- ilość mieszkań = 96
- PUM = 4753 m2
- PUU = 1950 m2 (parter 1300 m2 + 650 m2 antresola)
- Łączna powierzchnia użytkowa mieszkań = 8584 m2
- Łączna powierzchnia użytkowa parteru = 3450 m2
- Łączna powierzchnia użytkowa (bez komunikacji i pow. technicznej = 12.034 m2

Dysponujemy opinią zabudowy oraz koncepcją zabudowy Karskiego Residence

Zapraszam na spotkanie.

UWAGA: Opis oferty zawarty w ofercie i na stronie internetowej sporządzany jest na podstawie oględzin nieruchomości oraz informacji uzyskanych od właściciela, może podlegać aktualizacji i nie stanowi oferty określonej w art. 66 i następnych K.C.


Nieprawidłowy adres E-mail